• Byggmann

309 – STOREFJELL

FLOTT HYTTE MED ET FANTASTISK OPPHOLDSROM
Storefjell er en flott og praktisk hytte over to etasjer med inngang i underetasjen. Hytten er tilpasset bratte utsiktstomter, der de store vinduene kommer til sin rett.

Du kommer inn i hytten via et overbygd inngangsparti under verandaen. Vindfanget er det første du møter, og her er det gjort plass til en romslig garderobe i tillegg til at du har tilgang til bod/teknisk rom og gang.
Fra gangen går det en trapp opp i andre etasje, samtidig som du finner et stort bad, to soverom og en praktisk bod i denne etasjen. Begge soverommene har store, flotte vindusløsninger som gjør det godt å våkne til utsikten utenfor.

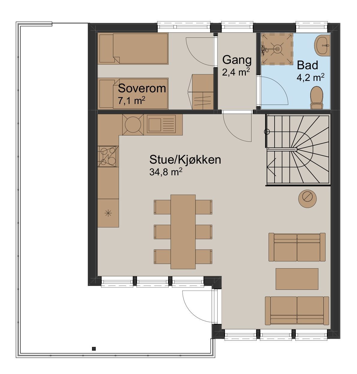
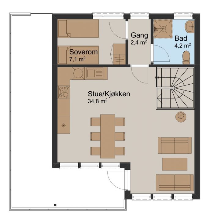
Går du opp trappen til hyttens hovedetasje kommer du inn i et stort og åpent rom med flotte vinduer som går helt opp i mønet. Dette skaper en atmosfære med mye lys og luft. I tillegg har du utgang via en moderne verandadør i glass, til den store verandaen på hyttens venstre side. I stue-/kjøkkenrommet har du plass til et innholdsrikt kjøkken, en stor spisegruppe og en hyggelig sittegruppe ved peisen. Fra stuen har du tilgang til en stor og flott terrasse fra en moderne verandadør i glass. I andre etasje finner du også et bad og et soverom, som du har tilgang til via en gang i bakre del av hytten.

Storefjell er en hyttemodell som egner seg svært godt i rekke, og er designet for å dekke behovet til den aktive familie, året rundt.
Begregnet for skrå tomt.

TEKNISK DATA

Bruksareal: 97,8 m²
Bebygd areal: 84,5 m²
Største lengde: 8,8 m
Største bredde: 10 m
Antall soverom: 3

PLANTEGNINGER

1. ETASJE

2. ETASJE

FASADE

ØNSKER DU MER INFORMASJON?

FYLL UT SKJEMAET, SÅ KONTAKTER VI DEG FOR EN HYGGELIG BOLIGPRAT

    ARKITEKT

    ALT KAN TILPASSES FOR Å IMØTEKOMME DERES ØNSKER OG BEHOV

    Fordelene med å bygge et helt nytt hus, er at du kan få det akkurat slik som du vil. Trolig finner du en husmodell i vår katalog som kan passe, men kanskje ønsker du å tilpasse boligen etter egne ønsker og behov.

    Vi vil gjøre vårt ytterste for at du skal bli fornøyd, og hjelper deg hele veien fra idé til ferdig bolig. Vi har fagkunnskap og gir gode råd for at du skal få bygget en bolig som passer deg helt perfekt.»

    Trykk her for å lese mer om arkitekttjenester fra Byggmann.