Gå til: Plantegninger | Fasade | Kontaktskjema
316 – FJORD
Fjord er en moderne og arealeffektiv hytte med alt du trenger på en flate.
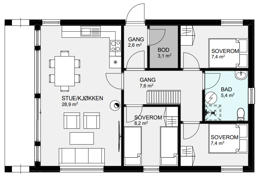
Denne hytten har tre soverom, bad og gode oppbevaringsmuligheter. Fra den åpne stue-/kjøkkensonen, kan du ta deg direkte ut på hyttens uteområde. Her kan du slappe av med en kaffekopp i solen, mens du nyter lyden av fuglekvitter og stillhet.
TEKNISK DATA
PLANTEGNINGER
ØNSKER DU MER INFORMASJON?
FYLL UT SKJEMAET, SÅ KONTAKTER VI DEG FOR EN HYGGELIG BOLIGPRAT
ARKITEKT
ALT KAN TILPASSES FOR Å IMØTEKOMME DERES ØNSKER OG BEHOV
Fordelene med å bygge et helt nytt hus, er at du kan få det akkurat slik som du vil. Trolig finner du en husmodell i vår katalog som kan passe, men kanskje ønsker du å tilpasse boligen etter egne ønsker og behov.
Vi vil gjøre vårt ytterste for at du skal bli fornøyd, og hjelper deg hele veien fra idé til ferdig bolig. Vi har fagkunnskap og gir gode råd for at du skal få bygget en bolig som passer deg helt perfekt.»







